The London I, II, III & IV
Two-Storey with Two-Storey or Bungalow
3 Car Garage
The London I
3 + 1 Bedrooms
3475 Sq Ft
The London II
4 + 1 Bedrooms
3520 Sq Ft
The London III
3 + 1 Bedrooms
3900 Sq Ft
The London IV
4 + 1 Bedrooms
3020 Sq Ft




This design is available in the following communities:
Documents
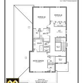
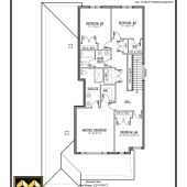
- The London I - Main Floor opens in a new window
- The London I - Second Floor opens in a new window
- The London II - Main Floor opens in a new window
- The London II - Second Floor opens in a new window
- The London III - Main Floor opens in a new window
- The London III - Second Floor opens in a new window
- The London IV - Main Floor opens in a new window
- The London IV - Second Floor opens in a new window







